> 適用范圍



一、產品概述
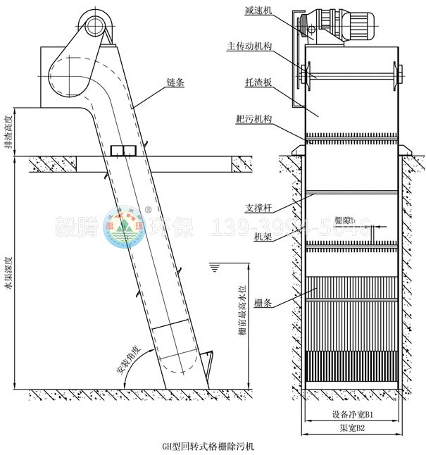
LFC型鏈板回轉式格柵清污機是我公司生產的一種能夠連續自動工作的清污設備,由柵條攔截液體中的雜物,耙齒板從柵條背面下降***底部后,回轉***柵條的前面,由下而上地將柵渣提升***卸科口排出,達到固液分離的目的,寬度***大可達4米之多。耙齒板由二側的板式鏈牽引,作循環運行,可有效地把木塊、竹竿等較大雜物和格柵底部的泥砂清除。
本格柵清污機主要由架體、牽引鏈、傳動系統、齒耙組合、水下導輪組合等組成。是各種水源進口不可缺少的諸多格柵中應用***為廣泛的一種設備。
二、適用范圍
該格柵清污機用來攔截、清除水中的漂浮雜物,使后續處理工序得以順利進行。該機工作效率高,運動平穩格柵前后水位差小,并且不堵塞,是一種較理想的除污機械。可廣泛應用于:
城市污水處理中各類雨水、污水泵站進水口;
給水提升泵站進水口;
市政污水、工業污水處理廠的進水口處;
紡織、造紙等工業污水處理系統進水口;
屠宰、食品加工、生活污水等污水處理系統進水口。
三、性能特點
?驅動裝置采用擺線針輪減速機,噪聲低,結構緊湊,運行平穩安全。
?機架具有獨特的框架結構,剛性強,且易安裝維護。分碳鋼和不銹鋼,碳鋼機架作防腐處理。
?傳動部分均采用不銹鋼材料,可有效防止設備的腐蝕損壞。
?耙齒板采用數控機床加工,精度高,外表美觀。其柵距可根據用戶要求進行確定。
?齒耙柵后下行,柵前上行撈渣,不會將柵渣帶入水下,撈渣徹底。
?當底部沉積物(泥砂,碎石)較多時,不會堵耙,避免造成事故。
?PLC自控系統可根據格柵前后液位差來控制其自動運行,動作程序可靠,故障率低;并且在現場設有手動開關,實現手動操作。可根據用戶需要,按實際需求設計運行程序和留有總控制的接口實現遠程控制。操作簡單、靈活、安全。
?為防止意外過載,設有過載電流保護,并在驅動鏈輪上設計有安全銷保擴,實行機械和電氣雙重保護,使本系統運行安全可靠。
?整機調試后出廠,安裝方便。
?檢修保養時,格柵可繞水上支點旋轉出水面,維護方便。
四、工作原理
自動格柵清污機是一種特制的耙齒配成一組連續工作的機構,在電機減速器的傳動之下,鏈輪驅動耙齒轉動,耙齒鏈的下部浸入進排水溝槽中,當耙齒按工作方向運動時橫排耙齒即把液體中的固態物質清理出來,當耙齒轉到設備的上部時,由于槽輪與彎軌的道向,使每次耙齒之內產生相當自凈運動,大部固體物質重力落下,另一部分依靠橡膠刷的反向運動,可以把粘在耙齒上的雜物洗刷干凈,確保流體順利通過。